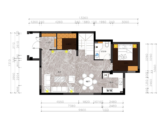
项目面积:165㎡ + 58风格:现代轻奢户型剖析

【户型优缺点】

客厅区间宽敞,但房高不算高,使空间比较压抑
厨房相对较小、顶部阁楼采光较弱、空间使用率较低
楼梯光线较暗,没有和楼下产生互动。

【户型改动】

把客厅上方楼板打掉,变成挑空的整体空间
楼梯没有墙的遮挡,使得空间的采光及互动感大大增加。
主卧从狭长的空间内增加了一个独立衣帽间。
阁楼东侧作为一个开敞的休闲娱乐空间,增加家庭互动。
西侧作为卧室,也加强了私密性。

何博

职位:高级设计师

年限:从业10年

预约设计师

项目面积:200风格:港式户型剖析

【户型优缺点】

厨房面积过于狭小
主卫面积偏大浪费空间,反而衣帽间面积过小
空间划分不够合理

【户型改动】

通过改变厨房墙体结构,既增大了厨房的储物空间
又为入户玄关增加了鞋帽柜,方便回家衣物的放置
合理划分主卫和衣帽间面积,缩小主卫面积,扩大
衣帽间面积,使其功能需求更加合理

武林慧

职位:高级设计师

年限:从业10年

预约设计师

项目面积:260风格:新中式 户型剖析

【户型优缺点】

户型规划相对合理。全明设计,南北通透,采光充分
又有利于室内空气流通。厨房与餐厅南北相连,就餐
使用更加便利。门厅狭长,面积不合理

【户型改动】

划分原始门厅为两个独立空间,一个为独立门厅
另一个为储物衣帽间

冯阔

职位:高级设计师

年限:从业7年

预约设计师

项目面积:321㎡风格:港式户型剖析

【户型优缺点】

进门玄关门厅区过渡是设计的亮点,敞开式
厨房和餐厅、客厅整个三层给主人使用,
与楼下公共区域独立分离

【户型改动】

通过改变厨房墙体结构,既增大了厨房的储物空间
又为入户玄关增加了鞋帽柜,方便回家衣物的放置
合理划分主卫和衣帽间面积,缩小主卫面积,
扩大衣帽间面积,使其功能需求更加合理

张雷

职位:高级设计师

年限:从业15年

预约设计师

项目面积:336风格:轻奢户型剖析

【户型优缺点】

功能划分不是很明确。
阳台窄小,卧室空间分配不均功能区域划分不明确部分空间浪费

【户型改动】

将玄关走廊,客厅与餐厅相连弱化空间划分,
增大客厅感官上的空间扩大化豪华套间,区域划分明确,
动静分离,衣帽间与卫生间分离。
2衣帽间和露台南北相连,使用便利。
化妆同时可以观景

康立翅

职位:高级设计师

年限:从业9年

预约设计师

项目面积:345风格:港式户型剖析

【户型优缺点】

主卧配备超大衣帽间,满足收纳和化妆功能,享受阳光唤醒的清晨时光豪华起居室配享大界面景观阳台,将最大化容纳生活景致

【户型改动】

方正阳光书房,或阅读,或音乐,或浅睡,或长谈;云起云落,天籁无声,极致无限舒展写意人生阔绰前庭后院拾阶而上,心随步高,登堂入室,尊贵的生活家从此开始宽大客

张张

职位:高级设计师

年限:从业10年

预约设计师

项目面积:365风格:新中式户型剖析

【户型优缺点】

客厅空间较小,占位比较尴尬,剩余空间窄长。
阳台窄小,卧室空间分布不均。卧室阳台窗窄小。
功能区域划分不明确,空间部分浪费。

【户型改动】

将窄长空间合理利用划分为中西厨。厨房餐厅南北相连就餐、使用便利。打通了卧室阳台门窗,改为推拉门增加了卧室的采光度豪华套件,区域划分明确,动静分离衣帽间与卫生间分离。衣帽间划分为男士衣帽间与女士衣帽间

韦延菊

职位:设计师

年限:从业10年

预约设计师

预约设计师